- Remerciements reçus 0
Avis sur future miellerie
- -Manu
- Auteur du sujet
- Ponte fraiche
-
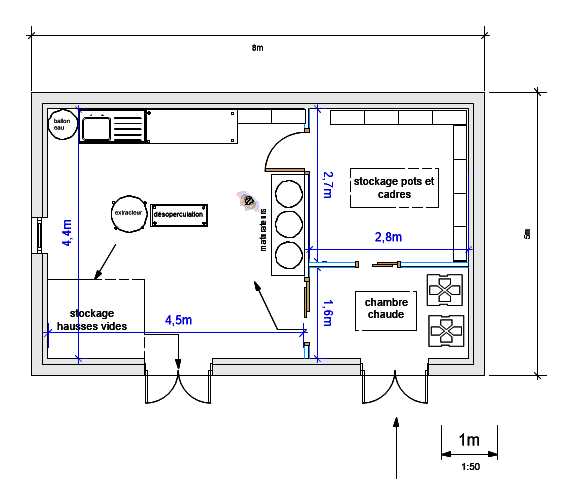
Cette année j'ai pour projet de bâtir une miellerie, actuellement pour une petite cinquantaine de ruches, peut-être plus à l'avenir.
J'aimerais avoir des avis d'autres apiculteurs qui sauraient voir des défauts ou amélioration auxquels je ne pense pas.
Ce bâtiment sera sous un grand hangar, il aura un toit plat permettant de stocker au-dessus.
J'ai prévu du parpaing de 20 ( peut être que ce sera du 10 ), isolation en placo (10mm) + polystyrène de (40mm)
Enfin bref c'est surtout sur les agencements que des retours d'expériences m'intéresseraient . J'ai fait en sorte qu'il n'y ait pas de marche arrière dans les étapes d'extraction.
Sur la photo la zone en rouge sera la miellerie, au fond, pour partir du mur déjà présent.
L'accès en véhicule se fait d'où est prise la photo.
Porte coulissante entre la chambre chaude et le côté extraction, portes à deux vantaux sur chaque pièce.
Je ne peux pas faire beaucoup plus que 8x5m pour tout le bâtiment, ce qui me semble déjà assez grand pour 50 ruches, peut-être même jusqu'à 100? Certes la fameuse règle du m2 par ruche n'est pas respecter mais bon.
Vos avis sont donc les bienvenus si vous en avez
Merci !
Connexion ou Créer un compte pour participer à la conversation.
- morgan
- Ponte fraiche
-
- Remerciements reçus 0
sinon niveau stockage hausse et matos divers il y a de la place, moi je te conseil de betonner le hangar au sol , comme ça avec un transpalette manuel tu t'évites des corvées( deplacer les hausses,nourriseurs , ruchettes, ruches etc)
ma miellerie fais a peu pres cette taille et je gere 200 caisses, mais je vends que en fut donc pas de probleme de stockage pour les pots vides et plein
j'ai 100mcarré de stockage/atelier, c'est un peu juste et c'est en mode tetris a certain moment
Connexion ou Créer un compte pour participer à la conversation.
- morgan
- Ponte fraiche
-
- Remerciements reçus 0
une boutique ouverte a certaine heure par exemple
Connexion ou Créer un compte pour participer à la conversation.
- christophe
- Ponte fraiche
-
- Remerciements reçus 0
Sol avec pente pour évacuation des eaux c’est bien aussi.
Connexion ou Créer un compte pour participer à la conversation.
- fanny@naturapi.com
- Hors Ligne
- Vieux bourdon
-
- Messages : 728
- Remerciements reçus 146
-Manu écrit: Certes la fameuse règle du m2 par ruche n'est pas respecter mais bon.
Je ne pense pas que cette régle concerne la seule surface dédiée à la miellerie, selon moi tu ne seras pas à l’étroit. Par contre comme morgan, je pense qu'il serait préférable de faire une pièce fraiche séparée de la chambre chaude.
Si tu réduis la chambre chaude, pense qu'il est bien de pouvoir accéder aux hausses qui sont rentrées les premières donc porte miellerie/chambre chaude à l'opposée de la porte extérieur/chambre chaude.
Connexion ou Créer un compte pour participer à la conversation.
- -Manu
- Auteur du sujet
- Ponte fraiche
-
- Remerciements reçus 0
@morgan, c'est vrai que le stockage dans la chambre chaude peut-être problématique, la seule option serait de réduire l'espace extraction et de couper la chambre chaude en deux pour faire une partie stockage.
En même temps la chambre chaude ne sera chauffée que pour les 2 ou trois récoltes par an le temps de déshumidifier.
Pour le stockage des cires tu parles des cadres bâtis ou des cires gaufrées ?
Je pense stocker les cadres bâtis dans des tours de hausses, soit devant la miellerie sur un petit espace bétonné, soit sur le toit s'il n'y en a pas trop.
J'ai lu ici et là qu'il était conseillé de conserver le miel à 25°c. Pour l'instant je stock le mien en cave et ça accélère bien la cristallisation avec le froid, mais jamais eu de soucis de fermentation .
Comme tu le dits une pièce en plus serrait bien mais pour l'instant je me limite à un 8x5m car le hangar sert encore à d'autres choses pour le moment.
@christophe, j'ai pensé à la pente et je me suis arrêté sur une évacuation sans pente, bien plus simple à faire et si jamais le bâtiment ne me sert plus un jour, la pente sera embêtante.
Évacuation + raclette c'est peut-être suffisant non ?
@wlz quand tu parles de pièce fraîche tu entends climatisée ? Sous le hangar je pense qu'il fera assez chaud.
Le frais c'est seulement pour le miel ?
Bien vu pour la porte
Connexion ou Créer un compte pour participer à la conversation.
- fanny@naturapi.com
- Hors Ligne
- Vieux bourdon
-
- Messages : 728
- Remerciements reçus 146
Connexion ou Créer un compte pour participer à la conversation.
- -Manu
- Auteur du sujet
- Ponte fraiche
-
- Remerciements reçus 0
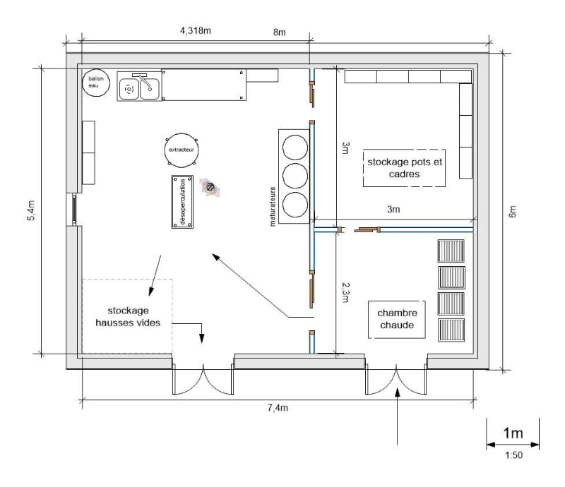
J'ai réfléchi à une nouvelle disposition.
Ce qui me chagrine un peu c'est de sacrifier une pièce pour pour la chambre chaude qui n'ait utilisée comme tel que très ponctuellement. J'ai un peu peur qu'une cloison + porte laisse quand même passer la chaleur d'une pièce à l'autre mais ça, tant que je n'aurai pas essayé en conditions réelles ...
J'ai un cellier qui reste à température constante, un peu humide mais pas non tant que ça. Ca pourrait être une autre solution pour le stockage du miel même si ça implique un transfert des pots.
Si je reste sur l'idée d'une pièce assez grande servira de chambre chaude au besoin mais surtout de stockage, est-ce que ça vous semble mauvais d'y stocker les cadres gauffrés ?
Sinon avec cloison en élargissant un peu sur la partie extraction ça pourrait donner ça :
Connexion ou Créer un compte pour participer à la conversation.
- ardecho
- Ponte fraiche
-
- Remerciements reçus 0
en cas de besoin, je la monte en 10 minutes, je met un extracteur d'humidité et un radiateur bain d'huile et ça fonctionne très bien. je peut faire passer le miel de 20% à 18% en 24h en faisant tourner les 2 à fond. j'y pose 3 piles de 12 hausses soit 36 hausses et ça m'a toujours suffit (pour 60 ruches en production mais ça ne m'est jamais arrivé que toutes les hausses d'une récolte soient trop humides)
la chaleur ne fuit pas, en tous cas trop peu pour empécher le système de fonctionner. c'est du dépannage au cas ou sur un rucher ça ne soit pas bien operculé.
je m'en sert en moyenne 3 ou 4 jours par an.
Connexion ou Créer un compte pour participer à la conversation.
- max16380
- Ponte fraiche
-
- Remerciements reçus 0
Connexion ou Créer un compte pour participer à la conversation.
- -Manu
- Auteur du sujet
- Ponte fraiche
-
- Remerciements reçus 0
@max c'est sûr, mais s'il faut faire une pièce en fixe il faut quand même qu'il y est où se tourner, et là comme on peut le voir sur le plan ça coupe un bon petit espace de stokage en deux petites pieces.
Ce qui me fait malgré tout pencher pour la première idée avec un "T2" , je pense que le bâtiment est trop petit pour être coupé en trois.
Et puis si je fait ça et que la température monte dans la partie stockage en été j'aurais tout gagné
Pareil pour le point de vente, l'idée est bonne mais est ce que ça nécessite une pièce dédiée ? c'est quoi en soit un point de vente directe ? Je vois ça comme quelque chose de simple, par exemple l'espace de stockage en ordre avec une table.
Hors sujet mais ce n'est pas trop galère de devoir régulièrement s'arrêter / faire des allers retours pour une personne qui viens chercher un pot ?
Merci pour vos expériences c'est sympa
Connexion ou Créer un compte pour participer à la conversation.
- cerise11
- Ponte fraiche
-
- Remerciements reçus 0
pour la vente directe ; j essaye de faire venir les " clients " un jour ou je fais de la mise en pot ....ou un jour ou tu travailles a l atelier
je vends direst dans la piece d extraction ... une petite table suffit quelques pots avec les tarifs sur une etagere
les gens sont toujours tres contents quand tu leur expliques comment tu travailles ; . comment on extrait le miel..., de le gouter , de le voir couler le miel direct dans leur pot ( souvent ils ramenent les pots de l année precedentes !!! )
au début c est marginal ... mais au fil des années ca se developpe bien
C est sur ... ca prends beaucoup de temps ... mais ca permet de se faire une clientele qui tres souvent en amene d autres ( amis ; voisins , ... )
et une année comme celle ci ou le miel se vends assez mal en gros ..tu es bien content d avoir des clients qui te prennent un carton de miel au meme prix que l an dernier
Connexion ou Créer un compte pour participer à la conversation.
- -Manu
- Auteur du sujet
- Ponte fraiche
-
- Remerciements reçus 0
Après réflexion je vais quand même essayer de faire trois pièces, j'ai donc rallongé d'un mètre la largeur du bâtiment, ce qui fait au total 48m², pour moins de 50 ruches c'est déjà un luxe. Disons que ça risque d'augmenter à l'avenir.
Je vais partir là dessus:
Merci à vous
Connexion ou Créer un compte pour participer à la conversation.
- max16380
- Ponte fraiche
-
- Remerciements reçus 0
Connexion ou Créer un compte pour participer à la conversation.
- cerise11
- Ponte fraiche
-
- Remerciements reçus 0
.tu pousses l extracteur et le bac dans un coin ....
Connexion ou Créer un compte pour participer à la conversation.













